PROYECTO VIVIENDAS, MADRID
LOCALIZACIÓN: Barrio SALAMANCA
SUPERFICIE: 1.479 m² + 200 m² de patio – jardín (importante pieza del proyecto).
La licencia de obra autoriza la construcción de 10 viviendas, 11 plazas de garaje, 10 trasteros y el vaciado (mayormente realizadas).
PRECIO REBAJADO: 2.700.000 €


 
 
 
  
 
3 HOTELES DE LA CADENA NH – MADRID
LOCALIZACIÓN: Barrio Salamanca y Barrio Chamberí – Almagro
SUPERFICIE TOTAL: 19.320m2
USO: actualmente hotelero. Admiten también uso residencial y oficinas.
PRECIO VENTA TOTAL: 78.000.000€
PRECIO CHAMBERI (2 hoteles): 54.000.000€
PRECIO SALAMANCA: 28.000.000€

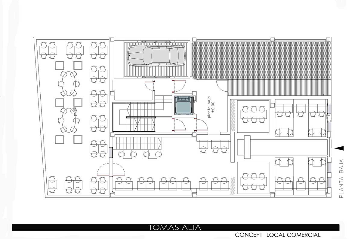
EDIFICIO ECHEGARAY 6, MADRID
LOCALIZACIÓN: Zona Centro – Cortes
El edificio ocupa un solar de forma rectangular, con fachada principal a la calle Echegaray. Consta de planta sótano, planta baja con una zona de entreplanta, planta primera y segunda. La superficie bajo restante es de 290 m² aproximadamente y sobre rasante de 900 m², lo que hace un total de superficie construida de 1.190 m².
El estado del edificio requiere una re-estructuración total para poder adecuarlo a un uso, tanto de distribución y acabados como de instalaciones. Posibilidad de construcción de una planta más sobre rasante y garaje robotizado.
Se han realizado varios estudios y proyectos de rehabilitación. Se adjuntan en la galería planos del Estudio TOMAS ALIA (viviendas y local).
PRECIO: 4 millones €

 
  
 
  
EDIFICIO MADRID RIO
SUPERFICIE: 1.600 m²
Edificio de reciente construcción. 5 plantas. Totalmente exterior. Ideal para apartamentos turísticos, residencia ancianos, viviendas (zona de alta demanda). Excelente rentabilidad como explotación actual.
PRECIO: 2.650.000€
EDIFICIOS INDUSTRIALES, MADRID
LOCALIZACIÓN: Ciudad Lineal, Madrid
PRIMER EDIFICIO
SUPERFICIE: 1.680 m² construidos, 6 plantas
Existe un estudio de transformación del edificio de industrial a viviendas.
SEGUNDO EDIFICIO
SUPERFICIE: 1.107 m² construidos, 5 plantas
Este edificio posee actualmente proyecto y licencia para su conversión en 13 viviendas.
